Информация
ID объекта: MAY1194
До центра: 250 м
Город / Район: Алания / Клеопатра
До пляжа: 650 м
Комнат: 2+1,3+1
До аэропорта: 44 км
Ванных комнат: 1-3
Дата сдачи: Декабрь 2022
Балкон: 1-2
Площадь: 70-138 м²
Предложение: От застройщика
Этаж: 0/4
Вид: Море / Горы / Город
Мебель: Нет
Инфраструктура объекта
- Беспроводной интернет
- Лифт
- Видеонаблюдение 24/7
- Детская площадка
- Зеленый сад
- Консьерж
- Круглосуточная охрана
- Открытый бассейн
- Спутниковое ТВ
- Фитнес-центр
- Электрогенератор
- Парковка
Описание
Расположение
Жилой комплекс будет располагаться в центральной части Аланьи, где сосредоточена основная городская инфраструктура. Здесь есть банки, клиники, салоны красоты, школы, музеи, парки, спортивные и детские площадки. Кроме того, в центральной части города много развлечений для туристов, а жилье там стабильно растет в цене.
Комплекс строится в 250 м от центра и в 650 м от пляжа. Расстояние до аэропорта – 44 км.
Инфраструктура
По проекту ЖК представляет собой два шестиэтажных здания, объединенные общей территорией, где будет сад с декоративными деревьями, бассейн, детская площадка и парковка. Для жильцов в комплексе предусмотрен фитнес-центр. Территория будет под охраной и видеонаблюдением 24/7. В квартиры планируется провести интернет и спутниковое ТВ.
Апартаменты
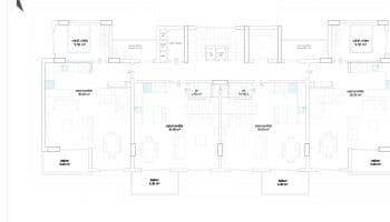
В ЖК продаются квартиры площадью от 55 до 166 кв.м.
Возможные варианты планировки:
1+1: Гостиная, объединенная с кухонной зоной, спальная комната, ванная и балкон (площадь 55 кв.м)
2+1: Гостиная, объединенная с кухонной зоной, две спальных комнаты, ванная и балкон (площадь 68 кв.м)
Дуплексы:
2+1: Гостиная, совмещенная с кухней, две спальных комнаты, ванная, туалет, балкон и терраса (площадь 91 кв.м)
3+1: Гостиная, объединенная с кухонной зоной, три спальных комнаты, две ванных, балкон и терраса (площадь 166 кв.м)
В стоимость квартир входит чистовая отделка: подвесные потолки с точечным освещением, кафель на полах, кухонный гарнитур, полностью укомплектованные ванные комнаты, домофон с видеосистемой, шумоизоляция.
Из окон будет открываться вид на море, горы и город.
Особенности
— Выгодное инвестиционное предложение на стадии строительства
— Новый современный ЖК, срок сдачи: декабрь 2022 г.
— Удачное расположение: в центре Аланьи, недалеко от моря
— Отельная инфраструктура в комплексе
У апартаментов в ЖК с таким расположением высокий потенциал для заработка на аренде. Кроме того квартиры подойдут в качестве инвестиционного проекта и для комфортной жизни и отдыха.
За дополнительной информацией обращайтесь к нашим менеджерам.
