Информация
ID объекта: MAY1488
До центра: 800 м
Город / Район: Алания / Оба
До пляжа: 1000 м
До аэропорта: 40 км
Площадь: 72-595 м²
Предложение: От застройщика
Этаж: 0/2
Вид: Город
Мебель: Нет
Инфраструктура объекта
- Лифт
- Видеонаблюдение 24/7
- Круглосуточная охрана
- Открытый бассейн
- Электрогенератор
Описание
Расположение
Офисное здание строится в современном районе Аланьи – Оба. Эту часть Аланьи все чаще выбирают европейцы и русскоязычные иностранцы для отдыха и постоянного проживания. Район активно развивается и застраивается новыми жилыми комплексами.
Здание будет находиться у главной дороги в 800 м от центра района и в 1000 м от моря.
Инфраструктура
В пятиэтажном здании расположатся торговые помещения и офисы. Комплекс будет обеспечен охраной и видеонаблюдением. В здании предусмотрены лифты и электрогенератор. Перед комплексом будет оборудована парковка.
Магазины
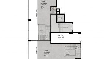
По проекту первый этаж комплекса отведен под торговые помещения. Магазины имеют два уровня – пространство в цоколе можно использовать как склад. Витрины магазинов выходят прямо на дорогу, то обеспечит дополнительный приток покупателей.
Площади магазинов от 135 до 200 кв.м
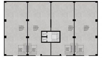
Офисы
Офисные помещения в здании расположены на 2 – 5 этажах.
Планировка: 1-3 кабинета, приемная, кухня, туалет, балкон
Двухуровневые офисы: 4 кабинета, приемная, кухня, 2 туалета, балкон, терраса.
Площадь от 72 кв.м.
Преимущества
— Выгодное предложение на стадии строительства
— Новый современный комплекс, стильный дизайн
— Удачное расположение: в активно развивающемся районе, у транспортной магистрали
— Просторные помещения
Данный комплекс дает уникальную возможность открыть магазин, офис и склад в одном помещении.
За дополнительной информацией по объекту обращайтесь к нашим менеджерам
