Информация
ID объекта: MAY4996
Город / Район: Бали / Чангу
Комнат: 2+1,4+1
Ванных комнат: 1-2
Балкон: 1-2
Площадь: 116-135 м²
Предложение: От застройщика
Этаж: 1/2
Вид: Природа
Мебель: Нет
Инфраструктура объекта
- Закрытая территория
- Зеленый сад
- Зона отдыха с шезлонгами
- Крытая парковка
- Открытый бассейн
Описание
Расположение:
Проект вилл находится на острове Бали, в популярном районе Чангу. Чангу сочетает в себе современные удобства и аутентичный балийский образ жизни. Этот район, пользующийся заслуженной популярностью среди туристов и местных жителей, дарит всем своим посетителям уникальное впечатление. Чангу предлагает комфортное проживание с полным спектром необходимых услуг, начиная от отличных ресторанов и кафе с балийской и интернациональной кухней, заканчивая магазинами и салонами красоты. Однако, несмотря на современные достижения, в Чангу всегда можно ощутить настоящую атмосферу Бали с ее традиционными храмами, местными рынками и дружелюбным населением.
Характеристики:
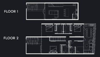
В этом проекте представлены разнообразные виллы с различными планировками. Варианты включают в себя 2+1 и 4+1 виллы, каждая из которых представляет собой уютное и просторное жилье. Площадь вилл варьируется от 116 квадратных метров до 135 квадратных метров, обеспечивая разнообразие выбора для потенциальных покупателей. Виллы на двух уровнях предлагают комфортное и функциональное пространство с видами на природу.
Инфраструктура:
Инфраструктура этого объекта включает в себя ряд удобств, чтобы обеспечить комфортное проживание и отдых жителей. Закрытая территория обеспечивает безопасность и приватность жильцов. Зеленые сады создают природную атмосферу и добавляют уют к окружающей среде. Специальные зоны отдыха позволяют расслабиться и насладиться природой. Открытый бассейн предоставляет возможность для освежения и активного отдыха. Крытая парковка обеспечивает сохранность автотранспорта и удобство его использования для жителей.
Мы будем рады ответить на любые дополнительные вопросы, которые у Вас возникнут и с удовольствием предоставим более подробную информацию!

