Доходность от аренды 13-18% годовых в новом проекте на Бали под управлением сети Ramada Encore открывает отличные возможности для инвесторов. Более 105 миллионов членов сети будут вашими потенциальными арендаторами, обеспечивая стабильный доход от посуточной аренды. Жилой комплекс также находится рядом с премиальными отелями, такими как Ritz-Carlton, Hilton и Kempinski, что делает его привлекательным для гостей высокого уровня. В шаговой доступности находится гольф-поле на 18 лунок, а до пляжа Пандава можно добраться за 3 минуты, до пляжей Меласти и Нуса Дуа — за 5-7 минут.
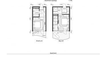
Это будет крупный комплекс общей площадью 10.000 м² с застройкой всего 5039,96 м², который предложит разнообразную инфраструктуру, включая два ресторана, бар, SPA-центр, тренажерный зал, коворкинг, Event Hall, детский образовательный центр и прогулочные зоны. Самый большой на Буките бассейн-лагуна площадью более 700 кв. м обеспечит жильцам уникальные условия для отдыха и расслабления. В комплексе предусмотрены 138 юнитов, включая апартаменты и виллы премиум-класса с планировками 1+1, 2+1, 3+1 и площадью от 31 до 175 м².
Дизайн комплекса вдохновлен водой, которая символизирует жизнь и энергию. Бассейны, прогулочные зоны и элементы ландшафта созданы так, чтобы приносить ощущение гармонии и расслабления. Специальная вода, доступная только в этом комплексе, дополнительно подчеркивает уникальность проекта.
Проект завершается в 4 квартале 2026 года, а форма собственности — Leasehold на 30 лет с гарантированным продлением на 20 лет. Специальные условия для первых покупателей включают рассрочку 0% до конца 2026 года с первым взносом от 25%, открытие банковского счета в международном индонезийском банке BNI, а также VIP-сервис AeroTaxi для владельцев вилл.
Так как комплекс управляется под брендом известной сети отелей Ramada Encore, жильцам будут доступны все гостиничные услуги, включая трансфер, уборку, организацию экскурсий и так далее. Отель также возьмет на себя полное управление арендой студий, квартир и вилл, включая маркетинг и размещение объявлений. Вам останется лишь получать доход от своей недвижимости.
Мы будем рады ответить на любые дополнительные вопросы, которые у Вас возникнут и с удовольствием предоставим более подробную информацию!