Информация
ID объекта: MAY4590
Город / Район: Гюзельюрт
Комнат: 3+1
Ванных комнат: 3
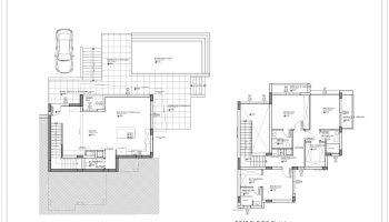
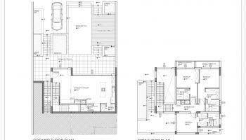
Площадь: 198-208 м²
Предложение: От застройщика
Этаж: 1/2
Вид: Море / Горы / Природа / Бассейн / Город
Мебель: Нет
Инфраструктура объекта
- Зеленый сад
- Зоны отдыха и барбекю
- Открытая парковка
- Открытый бассейн
- Система умный дом
Описание
Расположение:
Этот жилой комплекс расположен в прекрасном городе Гюзельюрт. Гюзельюрт – это истинный рай для фанатов фруктов и овощей на Кипре. В этом прекрасном уголке острова произрастает почти каждый вид фруктов и овощей, которые радуют своим восхитительным вкусом и свежестью. Здесь выращивают апельсины, мандарины, грейпфруты, лимоны, клубнику, финики, виноград и орехи. Этот район славится своими яркими и колоритными фестивалями, посвященными сезону созревания фруктов. В это время местные жители и посетители с радостью отмечают изобилие урожая и делятся своей радостью с гостями.
Помимо изобилия фруктов, Гюзельюрт предлагает разнообразные возможности для активного отдыха и увлекательных экскурсий. Здесь можно посетить удивительный подземный город, исследовать загадочные пещеры и насладиться уникальными природными заповедниками. Каждая поездка или прогулка становятся незабываемым приключением, погружающим вас в удивительный мир природы и исторических сокровищ.
Характеристики:
Жилой комплекс предлагает просторные виллы с планировкой 3+1. Каждая вилла имеет 3 ванные комнаты и общую площадь в от 198 до 208 квадратных метров. Предложение от застройщика позволяет вам приобрести эти виллы сразу от непосредственного застройщика, что гарантирует высокое качество и надежность. Виллы предлагаются без мебели, что дает вам возможность оформить их по своему вкусу и предпочтениям.
Инфраструктура:
Инфраструктура комплекса обеспечит вас всем необходимым для комфортного проживания. Здесь вы найдете зеленый сад, где можно насладиться красотой природы и провести время на свежем воздухе. Также в комплексе есть зоны отдыха и барбекю, где вы сможете устраивать вечера в компании друзей и близких. Для удобства владельцев предусмотрена открытая парковка. Кроме того, комплекс обладает открытым бассейном, где можно освежиться и насладиться солнечными днями.
Особенностью этих вилл является система умный дом, которая позволяет вам контролировать различные аспекты вашего дома с помощью технологий. Это обеспечит вам комфорт и безопасность на новом уровне.
Мы будем рады ответить на любые дополнительные вопросы, которые у Вас возникнут и с удовольствием предоставим более подробную информацию!
